|

|
QGT型氣動球閥,是在引進國外先進技術的基礎上進行特殊設計,精心制造的產品。采用智能控制與定位,與電氣閥門定位器配套,輸入4-20mADC信號及0.4~0.7MPa氣源即可控制運轉,實現對壓力、流量、溫度、液位等參數的調節。它是以壓縮空氣為動力,閥桿帶動閥芯在閥體內轉動90°可以實現全開—全閉的動作。該產品按其密封性能分為金屬密封與軟密封。具有結構緊湊、體積精小、運行可靠、密封性好、維修容易、安裝方便、適應性強等優點。特別適合于介質是粘稠、含顆粒、纖維性質的場合。可廣泛應用于石油、化工、教學設備、輕工、高壓設備、制藥、造紙等工業自動控制系統中,作遠距離集中控制或就地控制。 |
一、閥體
公稱通徑:15~200mm
公稱壓力:PN1.6 4.0 6.4MPa
連接形式:法蘭式按JB78-59 JB79-59
材 料:WCB,HT200 ,ZG1Cr18Ni9Ti,
ZG0Cr18Ni12Mo2Ti,襯四氟乙烯,CF8(304),
CF8M(316) ,CF3M(316L)
溫度范圍:常溫-20℃~+180℃
中溫-40℃~+350℃
填料:V型聚四氟乙烯填料,含浸聚四氟乙烯填料,
石棉編織填料,柔性石墨。
二、閥內組件
閥芯型式:O型閥芯
流量特性:快開特性
材 料:ICr18Ni9Ti , 0Cr18Ni12Mo2Ti
閥座材料:聚四氟乙烯(PTFE),特制PPL,金屬閥座
可 調 比:350:1
三、執行機構
氣缸工作壓力:0.4~0.7Mpa
氣缸開關時間:雙作用式1~5秒
氣缸空氣耗量:1~131L
電磁閥 電 源:220VAC,24VDC
氣 缸 形 式:單缸式或雙缸式
四、流量特性Kv值
|
公稱通徑(DN)
|
不同開度角下的Kv值
|
|
溫度
|
10o
|
20o
|
30o
|
40o
|
50o
|
60o
|
70o
|
80o
|
90o
|
|
50
|
2
|
4
|
9
|
17
|
32
|
60
|
97
|
151
|
215
|
|
80
|
6
|
11
|
22
|
44
|
83
|
155
|
250
|
389
|
550
|
|
100
|
9
|
18
|
35
|
71
|
133
|
248
|
398
|
620
|
890
|
|
150
|
20
|
40
|
80
|
160
|
300
|
560
|
900
|
1400
|
2000
|
|
200
|
36
|
72
|
143
|
286
|
737
|
1002
|
1611
|
2506
|
3580
|
|
250
|
57
|
113
|
226
|
453
|
848
|
1582
|
2543
|
3955
|
5650
|
|
300
|
81
|
163
|
325
|
651
|
1220
|
2278
|
3661
|
5695
|
8100
|
五、規格性能表
|
公稱通徑DN
|
15
|
20
|
25
|
32
|
40
|
50
|
65
|
80
|
100
|
125
|
150
|
200
|
|
|
|
流量系數(Kv)
|
20
|
38
|
72
|
110
|
170
|
215
|
380
|
550
|
890
|
1400
|
2000
|
3580
|
|
|
|
動作范圍
|
0-90
|
|
允許壓差ΔP
|
小于公稱壓力(1.6MPa)
|
|
泄漏量Q
|
按API598標準測試 無泄漏
|
|
基本誤差
|
2% 帶定位器
|
|
回差
|
2% 帶定位器
|
|
死區
|
0.6% 帶定位器
|
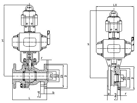
六、QGT641F法蘭式氣動球閥
安裝尺寸QGT641F-16(1.6MPa)、25(2.5Mpa)、40(4.0MPa)型氣動球閥,主要外形連接尺寸
|
DN
|
L
|
H
|
D
|
D1
|
D2
|
b
|
f
|
D3
|
Z-d1
|
|
15
|
130/130/140
|
279
|
95
|
65
|
45
|
14/16/16
|
2
|
40
|
4-Φ14
|
|
20
|
140/140/150
|
282
|
105
|
75
|
55
|
14/16/16
|
2
|
51
|
4-Φ14
|
|
25
|
150/150/165
|
295
|
115
|
85
|
65
|
14/16/16
|
2
|
58
|
4-Φ14
|
|
32
|
165/165/180
|
298
|
135
|
100
|
78
|
16/18/18
|
2
|
66
|
4-Φ18
|
|
40
|
180/180/200
|
325
|
145
|
110
|
85
|
16/18/18
|
3
|
76
|
4-Φ18
|
|
50
|
200/200/220
|
332
|
160
|
125
|
100
|
16/20/20
|
3
|
88
|
4-Φ18
|
|
65
|
220/220/250
|
422
|
180
|
145
|
120
|
18/22/22
|
3
|
110
|
4-Φ18/8-Φ18/8-Φ18
|
|
80
|
250/250/280
|
558
|
195
|
160
|
135
|
20/22/22
|
3
|
121
|
8-Φ18
|
|
100
|
280/280/320
|
573
|
215/230/230
|
180/190/190
|
155/160/160
|
20/24/24
|
3
|
150
|
8-Φ18/8-Φ23/8-Φ23
|
|
125
|
320/320/360
|
605
|
245/270/270
|
210/220/220
|
185/188/188
|
24/28/30
|
3
|
176
|
8-Φ18/8-Φ25/8-Φ25
|
|
150
|
360/360/400
|
644
|
280/300/300
|
295/310/320
|
210/218/218
|
24/28/30
|
3
|
204
|
8-Φ23/8-Φ25/8-Φ25
|
|
200
|
400/400/550
|
850
|
335/360/375
|
295/310/320
|
265/278/282
|
26/34/38
|
3
|
260
|
12-Φ23/12-Φ25/12-Φ30
|
注:表中數據xx/xx/xx分別為壓力1.6MPa、2.5MPa、4.0MPa。L結構長度數據可以戶提供。
七、QGT671F對夾式超短型氣動球閥
主要外形和連接尺寸:QGT671F-16(1.6MPa)、25(2.5MPa)、4.(4.0MPa)
注:表中數據XX/XX分別為壓力1.6MPa、2.5MPa
|
DN
|
d
|
L
|
H
|
D
|
D1
|
D2
|
b
|
f
|
L0
|
Z-Md
|
|
15
|
14
|
35
|
328
|
90
|
65
|
45
|
14/16
|
2
|
180
|
4-M12
|
|
20
|
19
|
38
|
335
|
100
|
75
|
55
|
14/16
|
2
|
180
|
4-M12
|
|
25
|
25
|
42
|
350
|
110
|
85
|
65
|
14/16
|
2
|
180
|
4-M12
|
|
32
|
29
|
50
|
380
|
130
|
100
|
78
|
16/18
|
2
|
220
|
4-M16
|
|
40
|
38
|
60
|
410
|
145
|
110
|
85
|
16/18
|
3
|
220
|
4-M16
|
|
50
|
48
|
70
|
442
|
160
|
125
|
100
|
16/20
|
3
|
260
|
4-M16
|
|
65
|
64
|
95
|
452
|
180
|
145
|
120
|
18/22
|
3
|
260
|
4/8-M16
|
|
80
|
76
|
118
|
495
|
190
|
160
|
135
|
20/22
|
3
|
296
|
8-M16
|
|
100
|
95
|
140
|
538
|
215/230
|
180/190
|
155/160
|
20/24
|
3
|
350
|
8-M16/20
|
|
125
|
118
|
175/195
|
585
|
245/270
|
210/220
|
185/188
|
24/28
|
3
|
350
|
8-M16/24
|
|
150
|
150
|
210/260
|
708
|
280/300
|
240/250
|
210/218
|
24/28
|
3
|
439
|
8-M20/24
|
八、臺灣三片式氣動球閥
主要外形尺寸和連接尺寸:QGT611F-25(2.5MPa)、40(4.0MPa)、64(6.4MPa)型氣動球閥
|
DN
|
G
|
d
|
L
|
L0
|
H
|
|
15
|
1/2″
|
15
|
75
|
180
|
280
|
|
20
|
3/4″
|
20
|
80
|
180
|
285
|
|
25
|
1″
|
25
|
90
|
180
|
295
|
|
32
|
11/4″
|
32
|
110
|
220
|
300
|
|
40
|
11/2″
|
40
|
120
|
220
|
312
|
|
50
|
2″
|
50
|
140
|
260
|
320
|
|
|
九、型號編制說明
|
Q
|
GT
|
6
|
71
|
F
|
16
|
C
|
G
|
|
閥門代號
|
|
執行 機構:
|
連接 形式:
|
密封面材質:
|
公稱壓力:
|
閥體材質:
|
溫度類型:
|
|
Q:表示球閥
|
|
6:表示氣動
|
71:表示 對夾式
|
F:表示四氟乙烯
|
16:表示1.6MPa
|
C:表示碳鋼
|
G:表示中溫型
|
|
|
|
|
41:表示法蘭
|
H:表示金屬密封
|
25:表示2.5MPa
|
P:表示不銹鋼
|
常溫省略
|
|
|
|
|
11:表示絲扣
|
|
40:表示4.0MPa
|
|
|
|
|
|
|
|
|
64:表示6.4MPa
|
|
|
十、訂貨須知
|